Kitchen


Proposed Kitchen Expansion and Remodel
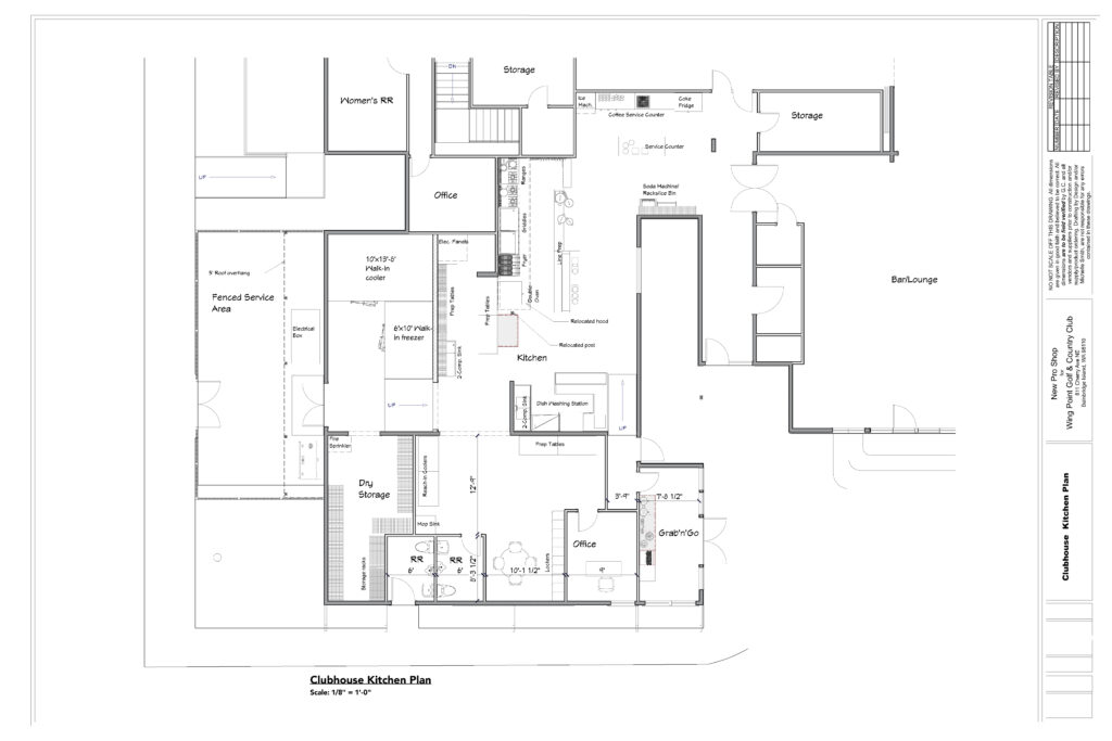
The proposed kitchen expansion will repurpose the current golf shop, adding 800 square feet to create a 2000 square foot kitchen. This expansion will provide new refrigeration, freezer, and dry storage facilities, along with an upgraded and expanded cooking line to accommodate increased member demand and menu flexibility.
The improved layout and equipment will enhance efficiency during club events while maintaining service to the bar and dining room. Expanded storage areas will optimize ingredient freshness, utilization, and inventory management. Designated delivery zones will streamline vendor operations, ensuring daily access to fresh ingredients. Increased prep space will improve ticket times and food preparation systems, contributing to better food safety and hygiene standards, ultimately providing members with safer and healthier meals.

